400 004 6868 別墅/大宅-尊贵热线

作者: 誉巢装饰 发表时间:2023-05-27




/引言/
随处可见阳光自由穿梭的落地窗,让空间通透旷达、奔放恣意。自然灵动的简约轻奢风,让氛围渐入佳境,清幽独处且大气典雅,品鉴尽欢。
本次案例展示的是以光为引,以意为境,最大限度地延伸光进入空间的维度,以及破旧立新意地展现出无拘无束的艺术张力。
当视觉语言的叙述渐达于心,这一份怡然自得足以共生。



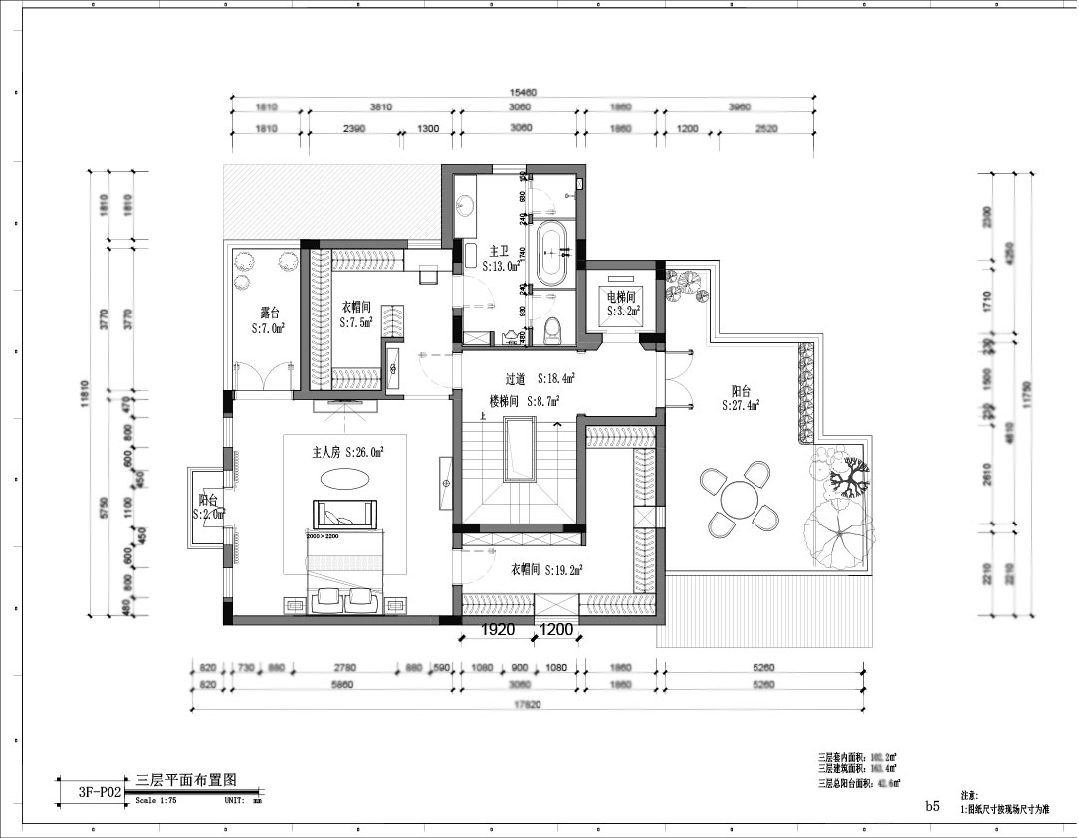
平面布置方案
1

美式风格的客厅,全景大飘窗,通风采光极佳,使得空间感有了很大提升。

餐厅无论是复古的水晶灯还是棕色的桌椅都让整体看起来灵动大气,墙面与顶面造型简洁流畅,采用不规则纹理的浅米黄大理石地面,让空间更加轻盈而不显沉重。

二楼主卧套房充分满足年轻人对时尚与潮流的追求,搭配原木色的地板和灰色的墙面与地毯,是诸多装饰中少有的能将古朴与现代空间布局巧妙结合的风格之一。

三楼主卧套房简洁轻奢的天花板与水晶灯,沉稳中不失大气,棕色家具、地板和门窗等自然相呼应,无不彰显主人不俗的品味和雅兴!

深色大理石地砖和咖色家具的搭配,让空间更加深远和安静。

2

浴室以鱼肚白、莎安娜米黄的大理石为主的卫生间设计,凸显出了空间的大气和奢华。自然的纹理丰富空间的同时,也给浴室增添了趣味性。


本案过道墙面装饰大面积留白,以浅色作为空间色彩基调,表现形式上更加豁达流畅,而米白色大理石搭配浅木框的油画,简单纯粹又不失格调!

对于房顶空间的利用,设计团队将其打造成了与自然融合的雪花状房梁,赋予空间更多的趣味性和层次感!
以几何语言写尽淋漓,塑其沉静质感,绘意趣横生的艺术格调。

现阶段已经完成木工工程了,正在一步步实现效果,想参观本案工地的,可以后台留言哦~
设计总监
王咨
因生活而设计,
因设计而美好。


985别墅装饰全案服务商
客户满意度≥98%
项目还原度≥95%
电话:400-004-6868
誉巢别墅装饰•深圳南山设计院
地址:深圳南山区北环大道10076号誉巢文化创意园
誉巢别墅装饰•深圳龙岗设计院
地址:深圳市龙岗区黄阁北路天安数码城1栋B座803
誉巢别墅装饰•广东顺德设计院
地址:佛山市顺德区大良沿江大道万科金域滨江商业
别墅区3号楼
誉巢别墅装饰•广东惠阳设计院
地址:广东省惠州市惠阳区白云二路诚杰壹中心 A栋
1316-1319室
誉巢别墅装饰•广东珠海设计院
地址:广东珠海市香洲区粤海中路森宇富通1座1503
为了你的权益,你的隐私将被严格保密

每天限定3个名额

30天内有128人预约成功
您的府邸面积(单选)