400 004 6868 別墅/大宅-尊贵热线

作者: 誉巢装饰 发表时间:2023-05-22

/引言 /
/ Preface /
日常是渐进式的。通常来说,这一秒和下一秒即使空间体验相同,感觉也不同。
生活本身栖身于时间的容器之中,而生活的氛围是我们与时间的博弈。本次案例展示的是在两个格局相同的精装空间中,演绎着两种完全不同的生活理想。
与其说硬装是一种人居理念的传达,那么软装就是一种浪漫地致敬——致敬理想、生活,以及繁芜世界背后的向往。



项目
项目概况 / Project address :梅州·锦江美景城别墅
项目面积 / project area:500㎡
风格 / Style: 现代轻奢
项目出品 / Project Manager :誉巢别墅装饰
设计师 /Designer: 龙科成 彭明媚

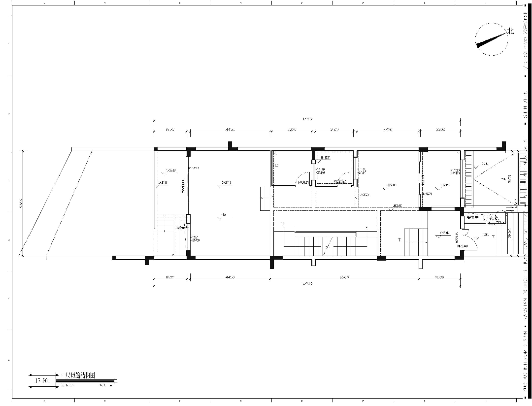
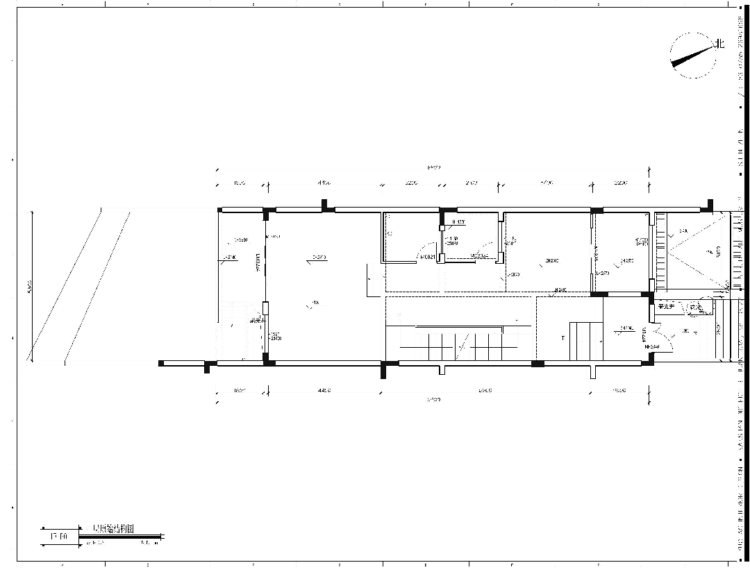
2套相同户型
一层平面设计方案展示
01

设计师巧妙的还原了业主对于墅居生活的想象,并在此基础上进行艺术化的丰盈。


开放式的布局,使得空间通透而明亮,墙面与顶面造型简洁大气,电视背景墙则用整版大理石来提升空间质感。


主卧套房延续整屋调性,各元素的选择与客餐厅相呼应。衣帽间则设计成封闭式,极尽隐私与舒适。

02



深色大理石地砖和咖色木饰面的搭配为原有空间注入理性色彩,每种材质的独特性无一不在诉说空间的沉稳力量。


设计师主张简洁的外形及实用的功能主义相结合,大气的设计格调,简约而有质感的装饰赋予空间更多的层次感。

简约于形,态度于心。
在开放的空间中,
不同的材质表现和碰撞,
和谐低调的表达着空间的沉稳静逸。
- END -
/ / 设计院长
________
龙科成
“设计是一种艺术,生活是一种有品质的生活艺术,注重空间的细节的处理,流行元素的运用及创作,追寻创造属于不同元素空间的'美'。”
设计总监
彭明媚
“少就是多,
简洁就是丰富,
用心去感悟空间。”

985别墅装饰全案服务商
客户满意度≥98%
项目还原度≥95%
电话:400-004-6868
誉巢别墅装饰•深圳南山设计院
地址:深圳南山区北环大道10076号誉巢文化创意园
誉巢别墅装饰•深圳龙岗设计院
地址:深圳市龙岗区黄阁北路天安数码城1栋B座803
誉巢别墅装饰•广东顺德设计院
地址:佛山市顺德区大良沿江大道万科金域滨江商业
别墅区3号楼
誉巢别墅装饰•广东惠阳设计院
地址:广东省惠州市惠阳区白云二路诚杰壹中心 A栋
1316-1319室
誉巢别墅装饰•广东珠海设计院
地址:广东珠海市香洲区粤海中路森宇富通1座1503
为了你的权益,你的隐私将被严格保密

每天限定3个名额

30天内有128人预约成功
您的府邸面积(单选)