400 004 6868 別墅/大宅-尊贵热线

作者: 誉巢装饰 发表时间:2019-08-05
在当今时代大环境下,年轻人都面临着生活与工作的双重压力,他们往往比父辈更渴望放松。现代装修风格简约时尚又带着一丝轻奢感,既能让人在简约舒适的环境中放松下来又满足了年轻人对精致品质生活的追求,充满腔调的设计也会给人带来爆棚的幸福感。让我们一起欣赏本案,出自誉巢设计师笔下现代风格小户型的温馨之家。


玄关


入户玄关处未经繁杂的修饰,而是通过简洁的设计,优雅的饰品来提升艺术格调,为入户到室内起到了一个很好的过渡作用。简约的立柜能收纳一些生活中的小物件,同时也能摆放装饰品来增添美感,让业主从进门起就被这个家所吸引。
客厅


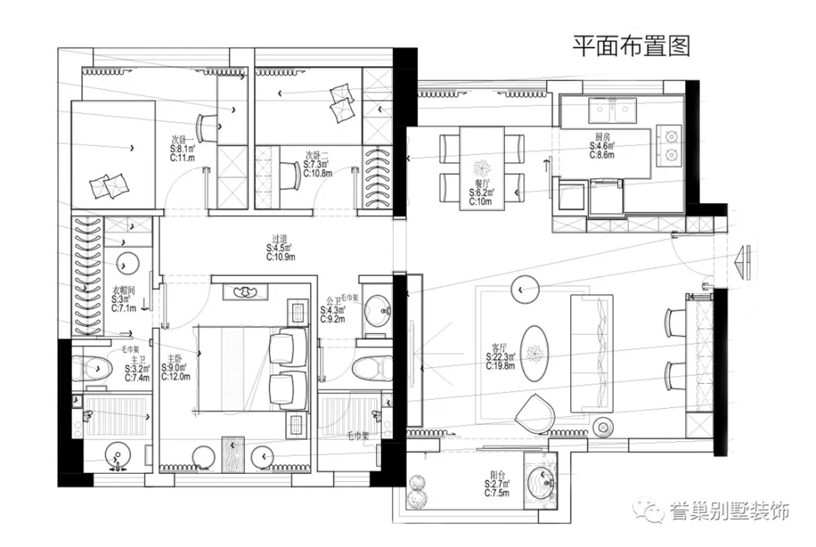
通过对本案的原始结构图和平面布置图进行对比,我们可以发现设计师将客厅中的一些墙面去除,使客厅空间最大化,提高了空间利用率。
高级灰作为一种沉静低调的色调,为空间内部的软装陈设调和出适度且适合的氛围感。设计师将高级灰的主体沙发与鹅黄色的家具组合,呈现出撞色的美感,使得空间整体风格显露出淡雅且不具形式的优雅,严谨中带有一份柔软的气息。
餐厅

餐厅中的墙面做了镜面处理,从视觉上拓宽了餐厅的空间,同时提高了明亮度。白色的大理石餐桌简约而百搭,桌上的插花盆栽随意摆放着,散发着浓厚的生活气息。
主卧

生活的诗意万象浮现于点滴日常,艺术的美感亦通过细节延展出诗意的具象。主卧中采用了对称式的艺术构造,整体形象平衡沉稳又不乏美感。柔软亲肤的床品以简洁迷人的白色为基底,用小面积的黄与灰加以点缀,更显灵动。
项目名称:公明天汇城
拥有沉稳质感的现代设计风格,彰显出理性、舒适的特性,简洁的线条,透现出空间的美感与力度,隔离了灯红酒绿的玩世不恭,让人们回归于理性,秩序感的生活。

为了你的权益,你的隐私将被严格保密

每天限定3个名额

30天内有128人预约成功
您的府邸面积(单选)