400 004 6868 別墅/大宅-尊贵热线

作者: 誉巢装饰 发表时间:2017-05-05
设计风格:欧式古典风格
户型:五居室
案例说明:户型上下三层,休闲娱乐空间集中在地下负一层,起居会客就餐在地上一层,居住等私密空间放置在第三层,空间既各自独立又不失联系。

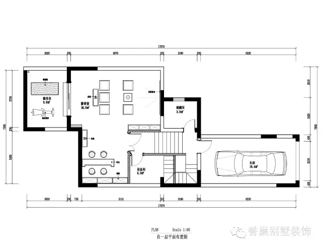
别墅设计负一层平面布置图
本户型三层,负一层简明图解,功能合理,分布有车库、储藏间、设备间、影音室、健身房。

别墅设计一层平面布置图
一层简明图解,客厅面积较大,过厅门厅相同,设有一卧、一厨、一卫生间、一餐厅和一个洗衣房。

别墅设计二层平面布置图
二层户型简明图解,二层基本是卧室,有主次卧房还有一个书房。

别墅欧式客厅装修效果图
用一整套家具和软装饰来营造整体效果,盆花的艳丽红色和沙发的清新绿色交相呼应。地面采用是明亮的大理石,吊顶采用的石膏装饰线,明亮的光线,提升了整体档次,硬装设计与家具在色彩、质感及品味上,完美地融合在一起。

别墅欧式楼梯间装修设计效果图
强调表面装饰,运用细密绘画的手法,具有丰富华丽的效果。墙面饰以优雅格调的装饰挂画,采用带有花纹图案的壁纸、毛绒地毯、以及古典式的棕色柜子,豪华沙发,或物件

别墅欧式餐厅装修设计效果图
餐厅主体是实木桌椅,在细节处理上,精雕细琢,以欧式线条勾勒出不同的装饰造型,典雅大气。一盆红色小花和蓝色调交相呼应,墙面的装饰画也给富丽堂皇的就餐区增姿不少。

别墅卧室装修设计效果图
卧室的吊顶,在造型上,以欧式线条勾勒出不同的装饰造型,气势恢宏、典雅大气。木地板舒适自然,欧式豪华大床配以真丝四件套简直完美。

别墅欧式主卫装修效果图
这是主卫,在色彩上,运用明黄、米白等古典常用色来渲染空间氛围,光滑的大理石瓷砖,营造出富丽堂皇的效果。淋浴花洒可以舒适的洗浴简直美极了。还有搭配一个节水防臭座便器是必须的。

别墅欧式次卧装修效果图
这是次卧,圆形的欧式软床,配以精美的床上套件,棕色实木地板,白色背景墙,达到唯美舒适的氛围。

别墅欧式书房装修设计效果图
书房的布置中规中矩,可爱的斑马纹地毯可爱活泼。欧式家具一如既往的典雅,而蓝色调的装饰画让你眼前一亮,还值得一提的是通风通气的百叶窗,营造出一个安静的小空间。

别墅次卧卫生间装修效果图
次卧的卫生间,木色的柜子,黑色大理石台面。梳妆镜子比较大,便于每日的自恋。透明玻璃的洗浴间,美观大方,让整体空间视觉上不至于变小,而功能上变大,也不会有很闷的感觉。

别墅次卧装修效果图
这是次卧,往里还有一个小试衣间,这是女孩子的大爱啊。紫色背景墙,欧式豪华大床,实木地板,还有银色柜子搭配大屏电视。

别墅酒区装修效果图
一个人独处或者好友过来一起小酌几杯,喝杯小酒,怎么能缺的了一个个性酒吧间呢。各类不同酒类分门别类拜访的收纳柜子,你瞅瞅要喝点什么好咧。

别墅影视厅装修效果图
谁能拒绝得了一个别外洞天的影音室呢,大红色的皮质沙发,一个超大屏幕,浪漫的星星个性吊顶,遥控播放热播电影,躺下慵懒的观影,简直爽到爆。
编辑:誉巢小编
地址:深圳市南山区北环大道10076号浩天誉巢文化创意园
电话:400 004 6868
为了你的权益,你的隐私将被严格保密

每天限定3个名额

30天内有128人预约成功
您的府邸面积(单选)