400 004 6868 別墅/大宅-尊贵热线

作者: 誉巢装饰 发表时间:2018-03-24
熙熙攘攘的人流,擦肩而过的邂逅……那些人与人、心与心之间的相逢相知,因为情义相通、彼此都懂,得以让故事变得意味深长,也被永远镌刻在建筑别墅的点滴中……

巧遇佳音,夙愿得偿
别墅的主人李先生一直生活在德国,本身曾有着数十年的建筑设计经验,后来由于某种原因转行了,但心中一直藏有对建筑家居深厚的情愫,对居所也有一些概念和想法,然而,如何细致得将心中所想落实到实处,对于已经转行多年的李先生来说,还是有些困难的。

因为缘分,认识了刘院,彼此进行深入的沟通交流,当刘院把设计图纸展现给李先生夫妇时,相互间真是有种相见恨晚的惊喜,李主大为喜悦:自己多年的对家的夙愿终于得以实现了。最终,因为这份相见恨晚的惊喜,也因为彼此建立的心有灵犀的信任感,李先生将别墅软硬设计装饰全权交给我们。
空间维度,安放心灵
经过沟通,了解到李先生希望能够充分享受这片人与自然亲密对话的空间,所以聚焦于以度假为主的性能设计,通过设计让空间感尽量打开,同时保留各个功能区,打造一个具备丰富性,而又宽敞的舒适空间,让每个角落都充满度假的气息!
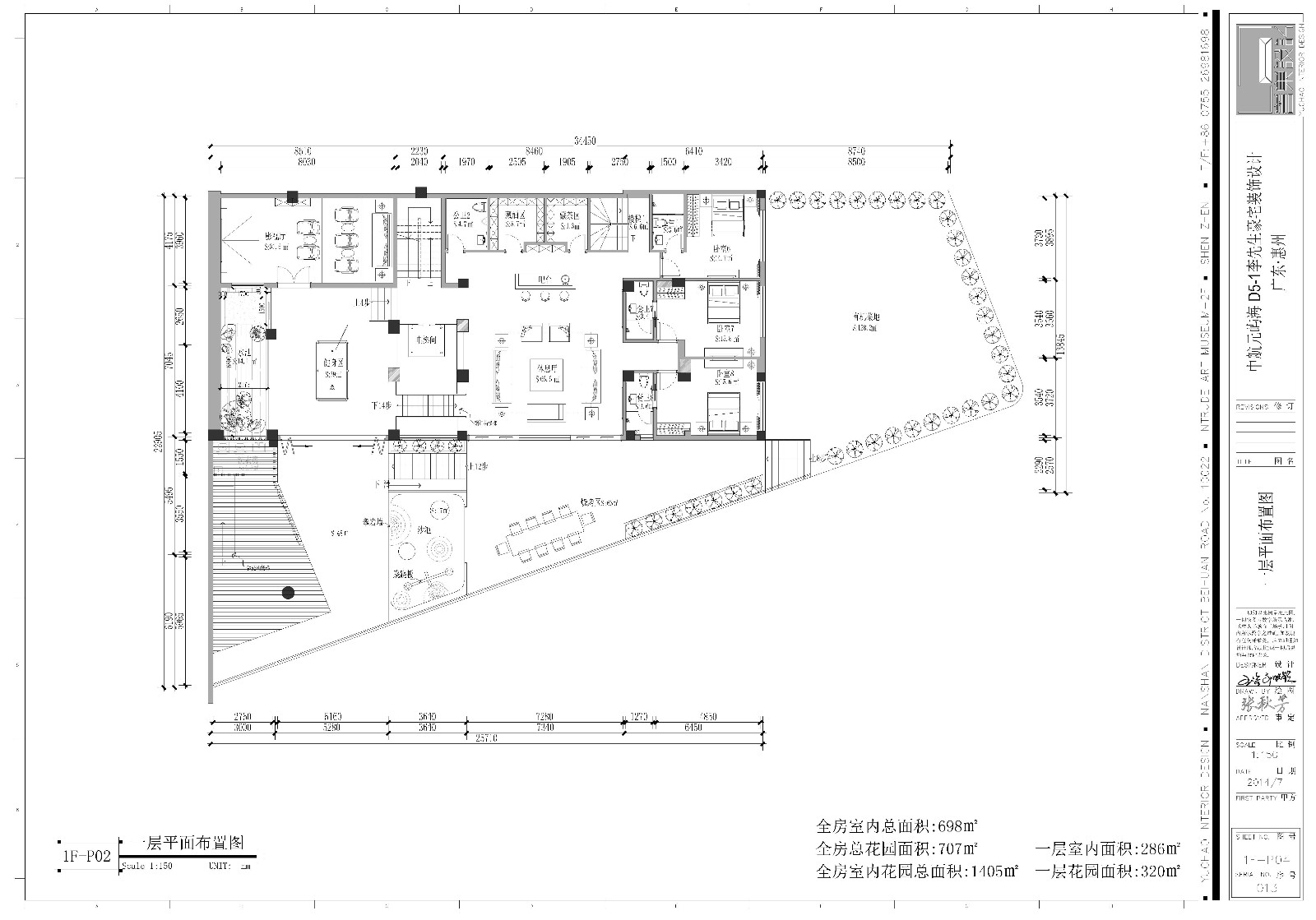
一层平面布置图:

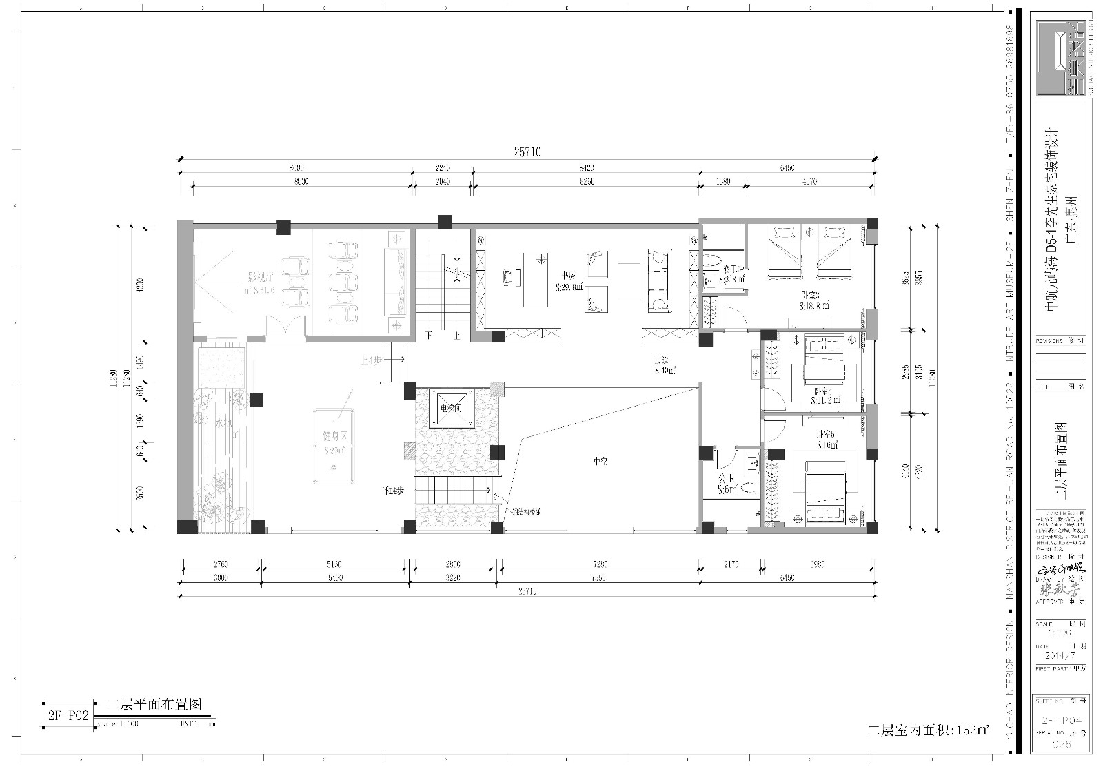
二层平面布置图:

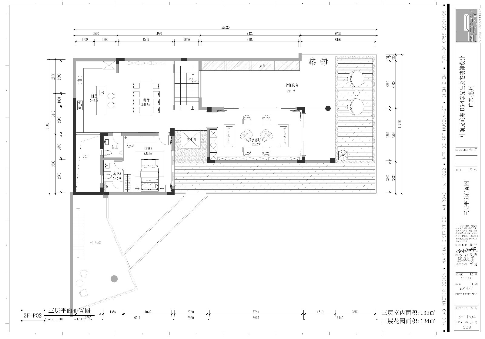
三层平面布置图:

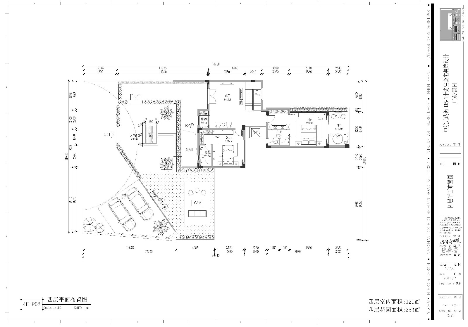
四层平面布置图:

设计定位:(简约/时尚/低调/大气)

李先生希望空间感尽量打开

也保留功能区丰富性和舒适感


(设计效果图)
简约中透着大气,低调中充满时尚感是我们最后协商一致的整体设计风格。
然而除了清晰的风格定位之外,如何做到最高还原度还原与业主气质相符的风格定位,如何从色彩、形态、材质上整体入手策划与李主夫妇气质相符的心灵居所,搭配丰富硬装给予的空间骨架,就得考验软装设计师的内在修炼功底了。
点睛配饰,焕发生机
誉巢别墅软装设计师团队具有国际领先的软装视角和多年的丰富经历,通过全方位塑造居室形象和细节,来凸显业主独特个性与气质, 为业主营造高品味空间和高品质生活。

在软装搭配中,除了对色彩、风格、格调、流行趋势等具有敏锐的直觉及操控能力之外,还需要深入了解业主生活方式,根据业主家庭成员喜好,职业、习惯、生活方式等选出实用、美观、并具有时代感的搭配物料清单。


(软装小伙伴加班选物品)
最重要的,还需要软装设计师将生活态度、品味、审美等个人元素融于每一个置家细节之中,使屋内一桌一椅,一灯一具的摆放皆赋有空间灵气。



(设计师现场指导摆放,每一处都留有我们的用心!)
装饰艺术在小伙伴用心摆场的映衬之下,更加理趣横溢,焕发生机。
原始木色,不忘初心
“设计跟好设计的差距,是一幅好看的效果图,到最后跟实景一致的距离。”
客厅


简约的摆设与原始的木质色调让整个空间闪烁出精致的内敛文化韵味,显现高端大气的人生品味!
酒窖
酒窖,是高品位生活的象征者


无论是从空间的大小、颜色的搭配、温度的调节、灯光的布局、材料的选用、再到周围环境的融入,在设计摆放过程中,都尽显完美内敛气质,也为居住者打造舒适、自在的居住体验,每一处都充盈着高品位生活的味道。
餐厅
人世间,最长情的告白,大抵就是吃饭时,你的距离,抬头可见陪伴日短,温情渐长。


原木色与浅灰色座椅搭配,或低调沉稳、或跳跃灵动,充分展示了空间的纯度美感。方寸之间,亦感天地之宽和初心不忘。

盏盏吊灯,足以让餐厅变得无限温情,家人相互间的眼神交流、吃出一家人其乐融融的暖意。
卧室
卧室是私密的空间,也是最需要静下来的地方,而色彩的选择能从视觉感官影响人的情绪。给休憩空间选择自然色,给人以温柔和舒适,让浮躁的心沉浸下来,抛去外界的喧嚣。



卧室的空间在刚与柔、冷与暖的色彩搭配中,凸显生活的自然平衡哲学。

简约的奢华感在亦原始木色格调空间里蔓延开来,娴静高雅却又随性不羁!
书房
书房是一个自由与思想交融的开放式的空间,材质的选择及色彩搭配简化至最少,置入天然原木本色,亲和中透着自然,纯美中透着轻盈的空灵,充盈着至纯至简的禅性智慧。



▲容膝静读,书香怡情

▼文章养趣,性情均雅


一切,至纯至简,只为不忘初心,回归本源!
抛却凡尘俗世的喧嚣,皆是返璞归真的洒脱,回到家,享受一份安逸、一份慵懒、一份愉悦的心情。对着碧海蓝天,呼吸一片芬芳,品味生活的诗意,不强调所谓的流行,仅仅是一种简化生活态度的传递,这就是业主想要的,也是我们设计师所追求的。
高山仰止,流水景行,从前也有知音,怎奈无人入我心坎,佳音难觅知己难求,不是没你不行,而是有了你才完美。抚琴,因你而来;居所,因你而更热爱生活!
Designer
硬装设计师:院长 刘聪颖

设计感悟:通过形态、色彩、材料及构造等元素阐述设计,辅以建筑空间的美学价值及素养。
主要荣誉:中国筑巢奖住宅类银奖、中国室内设计大赛住宅类一等奖、中国室内设计大赛商业空间类一等奖、中国(深圳)第三届室内设计文化节住宅类银奖、中国(深圳)优秀设计师称号、“L&D”杯第三届海峡两岸三地室内设计大赛一等奖、深圳“佳美杯”电视大赛最佳设计创意奖。
软装设计师团队:誉巢别墅软装设计团队,专为你私人订制高品味家居和高品质生活。你的精益求精也是我们的执着追求。

为了你的权益,你的隐私将被严格保密

每天限定3个名额

30天内有128人预约成功
您的府邸面积(单选)